Retour aux offres de location

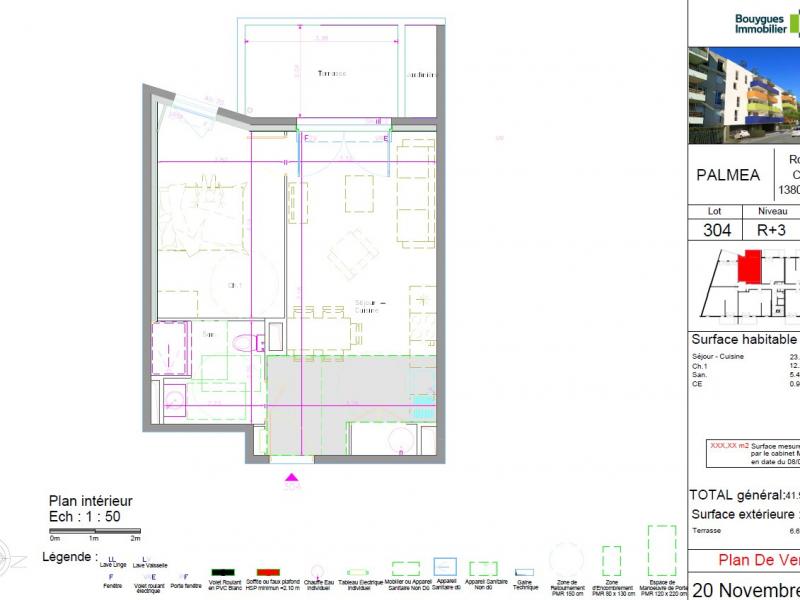
appartement 2 pièces 42 m²

Istres Ref :L50043295 Maj : 21/01/2026
746 € /mois
charges comprises

Surface : 42 m²

Salles de bain : 1

Chambres : 1

Garage : 1

Istres, 20 route de la Capelette. Pas de frais d'agence.
T2 de 42.04m2 dans un immeuble neuf avec livraison prévue le 21 octobre 2025,plusieurs appartements encore disponibles du T2 au T4 (et duplex) de 740.12€ à 1490.12CC (hors parking)
Il comprend un séjour avec cuisine semi-équipée, donnant sur terrasse une salle d'eau avec WC. Chauffe eau thermodynamique.
Place de parking en sous-sol en supplément à 41.30€/mois.
Conditions de ressources maximales selon foyer fiscal zone A (cf Tableau en photo) et au moins 3x le montant du loyer.
Les informations sur les risques auxquels ce bien est exposé sont disponibles sur le site Géorisques : www.georisques.gouv.fr
Réf : AIX/GPA

Loyer : 746€ /mois
89€ de provisions de charges

Informations

  • Surface : 42 m²
  • Année de construction : 2025
  • Nombre d'étages : 4
  • Pièces : 2
  • Chambres : 1
  • Salle(s) d'eau : 1
  • Toilettes : 1
  • Terrasse(s) : 1
  • Chauffage : panneaux rayonnant electrique individuel
  • Séjour : 23.31 m²
  • Cuisine : americaine -semi-equipee
  • Garage : 1

Diagnostic de performance énergétique

Consommations énergétiques (kWhEP/m²/an) C
Émissions de gaz à effet de serre (kgeqCO2/m²/an) C