


Marseille 13013, 54 Rue de la Maurelle. Pas de frais d'agence.
 T2 de 49,80m2 dans un immeuble neuf livraison prévu mi décembre.
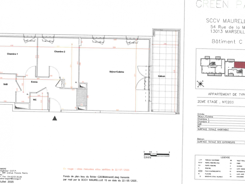
 Il se compose d’un hall d’entrée avec placard, d’une cuisine équipée ouverte sur un séjour lumineux, d'une chambre, d’une salle de bain et de WC séparés. Un balcon vient prolonger l’espace de vie, idéal pour profiter des beaux jours. Le chauffage est individuel au gaz, garantissant confort et autonomie. Ce bien allie modernité, fonctionnalité et qualité de vie dans un quartier bien desservi et en plein développement.
 Visite virtuelle: https://envisite.net/vtour/fr/ufj5iq/frame
 Place de parking en sous-sol en supplément à partir de 42,75€/mois.
 Conditions de ressources maximales selon foyer fiscal zone A (cf Tableau en photo) et au moins 3x le montant du loyer.
 15 appartements de type 2 disponibles à partir de 914,01€ charges comprises. Hors parking. 
 Les informations sur les risques auxquels ce bien est exposé sont disponibles sur le site Géorisques : www.georisques.gouv.fr
 Réf : SJU/EMA
																							Loyer : 914€ /mois												
103€ de provisions de charges 																																																																																
Dépot de garantie : 810€